- 
			车位引导总屏
 
车位引导总屏详细说明
1 产品简介户外引导大屏由高亮度LED模组、驱动电路、电源、外壳等部分组成,安装在停车场的每个入口处,用于显示停车场内剩余车位信息。它通过RS485总线接收节点控制器的车位信息,实时显示当前各区停车场空车位数量,提示准备入场的车辆司机,24小时全天候使用。2 产品特点
1) 引导屏采用钢化玻璃面板 冷钢烤漆外壳,外观简洁大气;2) 外壳采用防水、防尘设计,并使用抗紫外线外漆,不易变色;3) 引导屏采用低功耗设计,同时具有短路、过压、过流、过载保护;4) LED采用高亮设计,强光下清晰可见,可视距离远,可视角广;5) 可按照现场要求,搭配LED模组的数量,增加或减少LED模组的层数3 技术参数
型 号: DPS-5520 工作电压: AC 220V 通讯方式: RS485 @ 9600bps 功 耗: 50W(单层) 通讯距离: 300m 工作温度: -20℃ ~ 65℃ 光 源: 绿LED灯珠 防护等级: IP67 尺 寸: 可根据客户需求定制 外观材质: 冷钢烤漆 钢化玻璃面板 表3.1 室内引导屏技术参数表
图3.1 户外引导大屏结构图(单位:mm)4 产品安装
户外引导大屏采用螺钉紧固安装。将Φ8圆钢、地脚螺钉(M12*500)制造地笼,如图4.2所示,然后将地笼及PVC穿线管(Φ50)预埋入800*1000*800mm混凝土,待自然凝固后,再将户外引导大屏固定到地脚螺钉上即可。(本说明仅供参考,施工请按照《建筑地基基础工程施工质量验收规范》GB50202-2002)
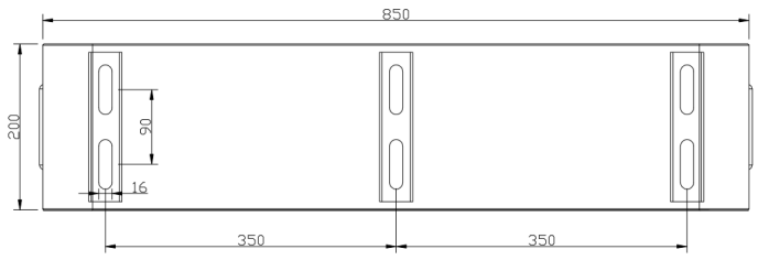
图4.1 大屏底座尺寸图
 
图4.2 户外引导大屏安装示意图
5 系统接线1)LED模组拨码LED模组拨码的地址对应系统的分区,例如:地址是1的LED模组显示的数字就是分区1的空车位数量(详情请参考车位引导系统安装调试手册)
 
图5.1 户外引导大屏电路板示意图如图5.1所示,大屏的圆圈部分是用来拨码地址的

图5.2 户外引导大屏拨码示意图注意:拨码1在OFF,拨码2~8在ON,此时LED模组的地址是1;拨码2在OFF,拨码1,3~8在ON,此时LED模组的地址是2;以此类推,如图5.2;2)接线RS485线接到节点控制器的L1~L5;红线接A,黑线接B;注意:可以手拉手串联其他的车位引导屏,每一路RS485总线串联LED模组的数量总计不能超过8个。电源就近接入AC220V
 



